Mortgage Calculator

Calculate

Instructions: Enter numbers and decimal points. No commas or other characters.

555 West 22nd Street, 20A

$23,000,000

$23,000,000

Mortgage Calculator

$10,597

RET

$8,395

Maint/CC

Condo

Property Type

Chelsea

Neighborhood

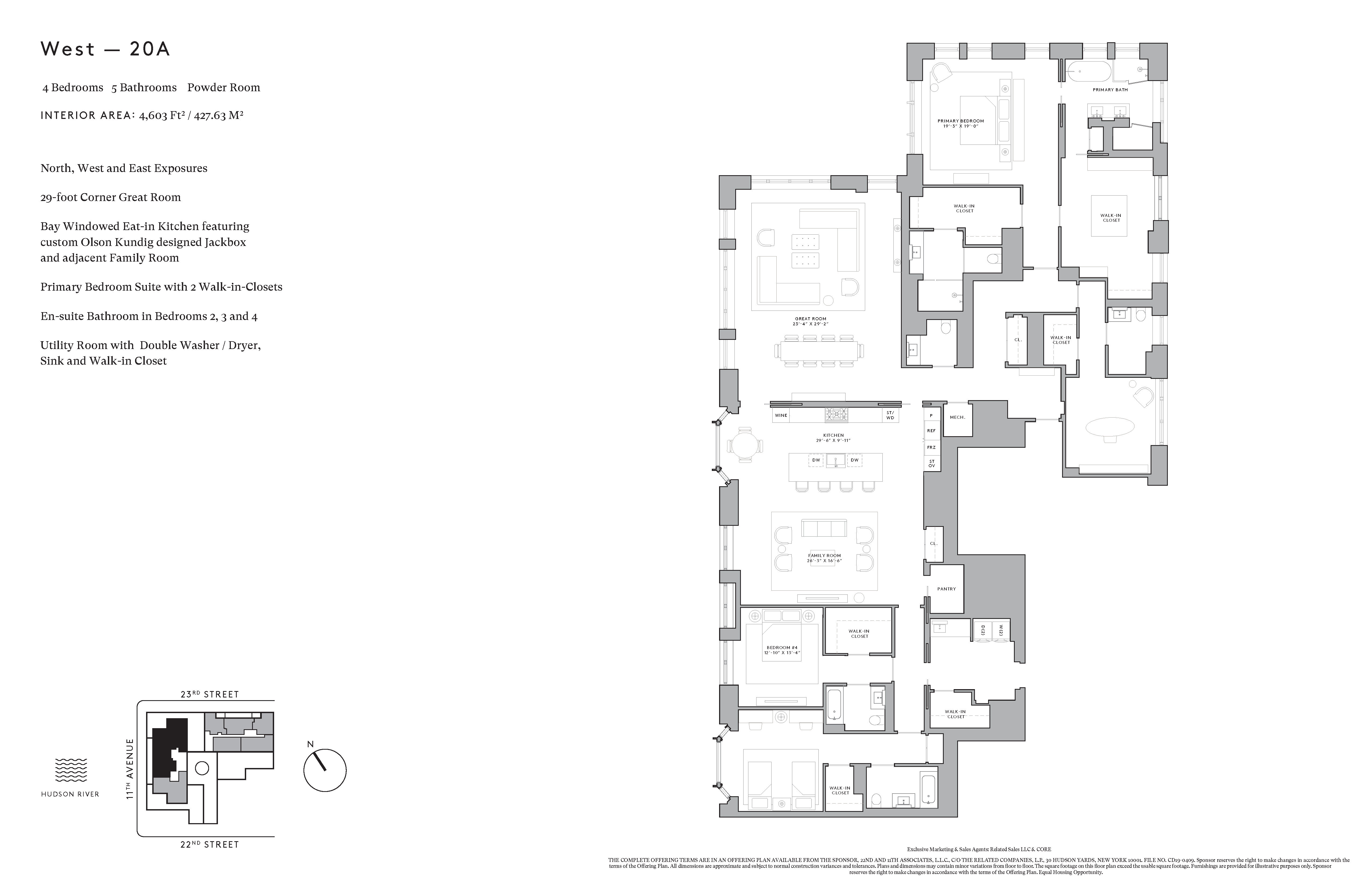
4,603

Approx. Sq. Ft.

4

Beds

5.5

Baths

About 555 West 22nd Street, 20A

Private In-Person & Virtual Appointments Available – Immediate Occupancy.

Inspired by West Chelsea’s historical architecture and rich heritage, The Cortland, located at 555 W 22nd Street, is striking a new presence on the Hudson waterfront. Hand-crafted and American-made, The Cortland represents a unique collaboration between two architectural icons, Robert A.M. Stern Architects and Olson Kundig. Uniting elegant design and exceptional attention to detail, The Cortland is a building that will stand for generations to come.

Residence 20A is 4,603 SF with four bedrooms and five-and-a-half bathrooms. The expansive, open-plan living and dining areas feature unobstructed views of the Hudson River, a 29-foot corner great room, a windowed eat-in kitchen with a custom Olson Kundig-designed Jackbox, warm wood flooring, and floor-to-ceiling windows. The primary bedroom suite features two walk-in closets connected to two full bathrooms. Each of the additional bedrooms is complete with an en-suite bathroom. A utility room with a double washer/dryer, sink, and walk-in closet ties into a secondary entry point.

The amenity program is the heart of the residential experience at The Cortland. Designed by Olson Kundig and curated by Related Life, the amenities have all the style and sophistication of a private members club in the city.

Developed by Related. The listing images represent the actual unit.

The complete offering terms are in the offering plan available from Sponsor. File No. CD 19-0409.

Key Features

Doorman
Building Garage
Building Laundry
Allows Pets
Building Storage
Unit Laundry
Elevator

Shaun Osher

Founder & CEO, Lic. RE Broker

212-726-0778

Discuss this property with Shaun

This field is for validation purposes and should be left unchanged.
This field is hidden when viewing the form
This site is protected by reCAPTCHA and the Google Privacy Policy and Terms of Service apply.

Shaun Osher

Founder & CEO, Lic. RE Broker

212-726-0778

More from this agent