Closed

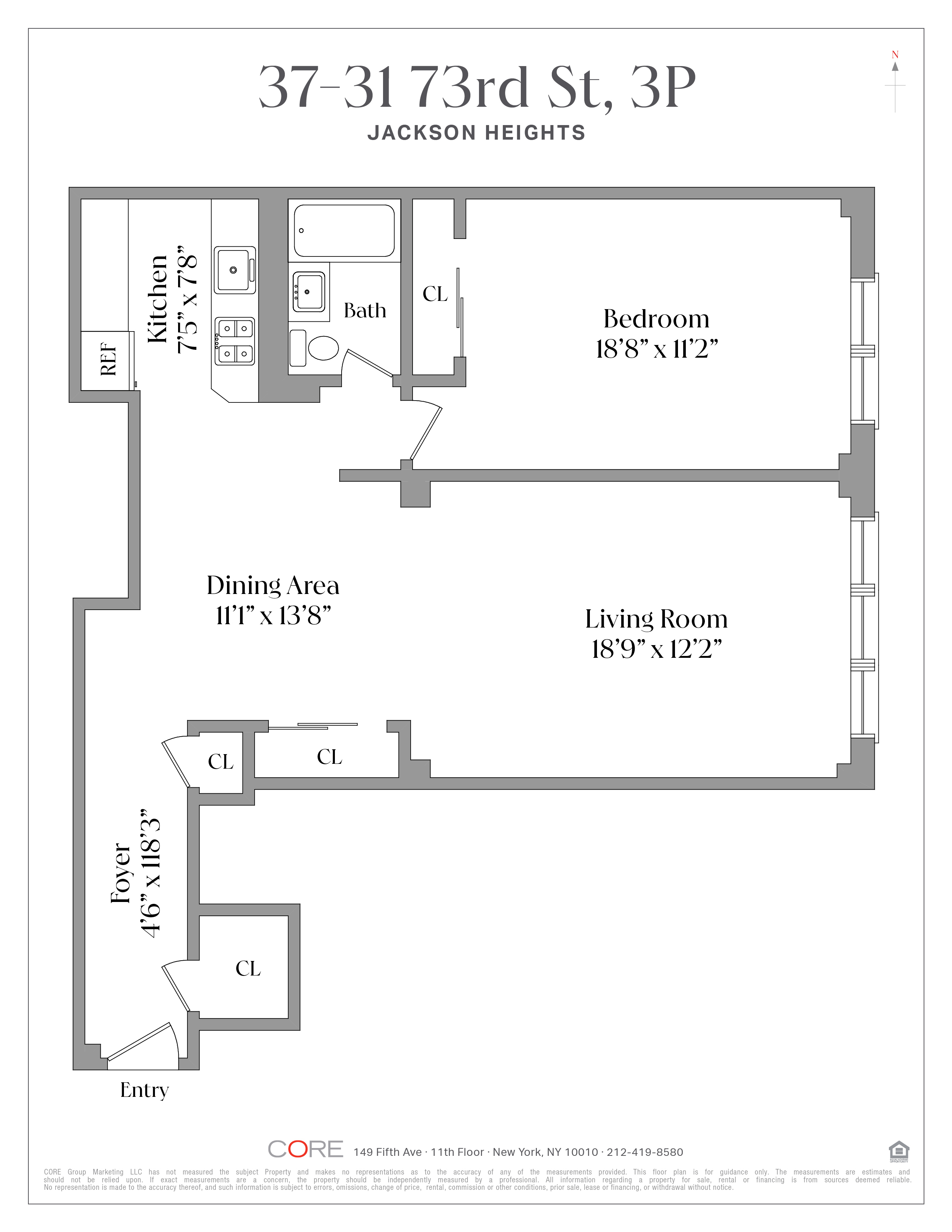
37-31 73rd Street, 3P

$2,500/mo

$2,500

Per Month

$0

RET

$0

Maint/CC

Co-op

Property Type

Jackson Heights

Neighborhood

0

Approx. Sq. Ft.

1

Beds

1

Baths

About 37-31 73rd Street, 3P

One of the largest layouts at Birchwood House is now available for rent, after undergoing a complete modern renovation.

Welcome to apartment 3P, offering a granite-top kitchen, an exquisitely tiled bath with quality fixtures, along with parquet floors, abundant closet space, eastern light, and in pristine cosmetic condition.

Birchwood House is one of the finest co-op buildings in Jackson Heights. Standing nine stories tall, it offers a doorman, roof deck, laundry room, bike storage, and a live-in super. The building’s one-block proximity to the Roosevelt express hub makes it very attractive to commuters, with easy access to E, F, R, M, and 7 trains and all local bus lines.

Showings are by appointment. Call to schedule!


Tenant Fee Disclosure:
$650 Application fee
$125 Background check
$150 Move-in fee

Armen Meschian

Lic. Assoc. RE Broker

917-848-6928

Discuss this property with Armen

This field is for validation purposes and should be left unchanged.
This field is hidden when viewing the form
This site is protected by reCAPTCHA and the Google Privacy Policy and Terms of Service apply.

Armen Meschian

Lic. Assoc. RE Broker

917-848-6928

More from this agent